近日,“可观的剖面—BIAD华南设计中心观演建筑展”在广州沙面的中法合筑建筑文化交流中心开展。展览集中展示和总结了以黄捷为代表的北京市建筑设计研究院股份有限公司(简称北京建院、英文简称BIAD)华南设计中心团队,从2003年至今的观演建筑设计实践。

广州沙面的中法合筑建筑文化交流中心·合筑空间
展览主题为“可观的剖面”:
可观意味着可以观看、可以观察,也表明了BIAD华南设计中心观演建筑设计成果的斐然;剖面是在设计过程中以垂直剖切的方式揭示建筑的内部与外部条件,展示建筑内部的空间、材料、尺度和内外空间分隔的一种图示方式。

开幕嘉宾合影
对于建筑而言,无论是剖面图还是平面图都是“不可见的”:
它们作为建筑师的主要表达方式,以假象的方式“切开”建筑,强调着建筑的空间组织与结构逻辑,并呈现出无法被肉眼直接感知的体量和空间关系。展览集中呈现的20件作品,以“可见的不可见”的方式展现了BIAD华南设计中心团队在观演建筑设计中观察、思考和价值判断。

BIAD总建筑师、华南设计中心原主任,展览学术总监黄捷进行专业导览

北京市建筑设计研究院股份有限公司副总经理颜俊先生(右一)与广州市住房和城乡建设局原总工程师、二级巡视员赖慧芳女士(右三)在交流

观展观众
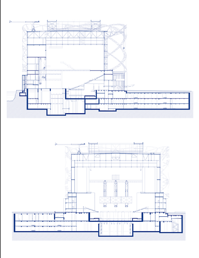
展览亮点:超尺度剖面图与文化公共建筑的融合
本次展览的一大亮点是将主要作品的平面图和剖面图放大展出。这些超尺度的剖面图不仅展示了建筑的空间结构和设计细节,还通过放大尺度激发了观众对建筑的体验与想象。策展团队希望通过这种方式,让观众更加直观地感受到建筑的温度和建筑师的创作初心。
此外,展览还通过多个案例展示了 BIAD 华南设计中心团队在文化公共建筑设计中的创新理念和实践成果。从武汉琴台文化艺术中心到广州大剧院,从北京天桥艺术中心到上海普陀中海剧院,这些项目不仅展现了团队在观演建筑设计中的卓越能力,也体现了他们对城市文化和公共空间的深刻理解。



河北廊坊丝绸之路国际文化交流中心剖面图(BIADsc提供)

展览主海报
“可观的剖面”BIAD 华南设计中心观演建筑展不仅是一次建筑项目成果的展示,更是一次创作思想的交流和碰撞。通过展览、嘉宾分享和学术对谈,观众不仅能够欣赏到优秀的建筑设计作品,还能深入了解建筑师们在设计过程中的思考和创新。本次展览将在沙面“中法合筑建筑文化交流中心”持续免费开放至2025年11月2日,欢迎各界人士前往参观,共同感受文化观演建筑的魅力和温度。
展览主题
可观的剖面 — BIAD华南设计中心观演建筑展
展期时间
2025年9月6日——2025年11月2日
合筑空间开放时间
周一至周日 10:00-18:00
展场地点
中法合筑•广州沙面南街28号
图、文/广州日报新花城记者:杨晓明(除署名外)
视频/中法合筑提供
编辑/广州日报新花城记者:杨晓明