2025年广州首批配售型保障性住房认购工作已落幕,第二批房源即将启动。如何申购?本批房源又有哪些亮点?记者带你先睹为快。
配售型保障房的申购要求
01户籍家庭(含单身人士)
① 主申请人须具有本市户籍;
② 在本市无房且申购前3年内无自有产权住房转移记录;
③ 在本市未享受过购房优惠政策(房改房、解困房、经适房、限价房、安居房、单位集资建房、拆迁安置房、侨房、配售型保障性住房等);
④ 在本市累计缴纳养老保险满3年(年满50周岁可豁免养老保险时限);
⑤ 单身申请人须年满30周岁。
02人才家庭(含单身人士)
① 主申请人须具备国家承认的国内本科及以上学历并获得学士及以上学位(或境外院校学士及以上学位)或中高级专业技术职称或高级工及以上职业技能等级证书或持有广州市人才绿卡主卡;
② 在本市无房且申购前3年内无自有产权住房转移记录;
③ 主申请人无户籍和年龄限制;
④ 在本市未享受过购房优惠政策(房改房、解困房、经适房、限价房、安居房、单位集资建房、拆迁安置房、侨房、配售型保障性住房等);
⑤ 养老保险年限(全职在穗工作的高层次人才和博士无养老保险年限要求;硕士1年;其他人才2年)。
配售房源及户型
本批次配售房源共1873套。其中,萝岗和苑推出房源1763套,为建面约76-93㎡的实用2-3房,含新增供应的E3-E8栋及剩余货量的A9/A10栋、E1/E2栋;嘉翠苑推出B1/B2栋剩余房源110套,为建面约71-89㎡的实用2-3房。

■萝岗和苑:科学城双地铁上盖,建面约76-93㎡
项目位于黄埔区水西路以西,7号线/21号线水西站上盖,可以一站换乘6号线萝岗站,有轨电车1号线,15分钟串联科学城核心区域。项目自带3所幼儿园、2所九年一贯制学校、约3万㎡商业综合体,配建肉菜市场,设有老年活动中心、文化站、居民健身中心等满足不同年龄段休闲娱乐与健身需求。
房 型 一 览


E5栋 03单元
萝岗和苑实用两房户型,以建面约77㎡的B1户型为例,整体布局紧凑合理,空间利用率高。

1入户丨入户玄关到餐厅的空间,可巧妙设计收纳柜,用于收纳鞋子与杂物,保证室内整洁。
2双厅丨双厅格局,客厅连通景观阳台,拓宽视觉空间,也让采光与通风效果更佳,闲暇时在阳台品茶赏景十分惬意。
3卧室丨主卧空间舒适,放置衣柜与双人床后仍显宽敞;次卧可根据家庭情况打造成儿童房或书房。
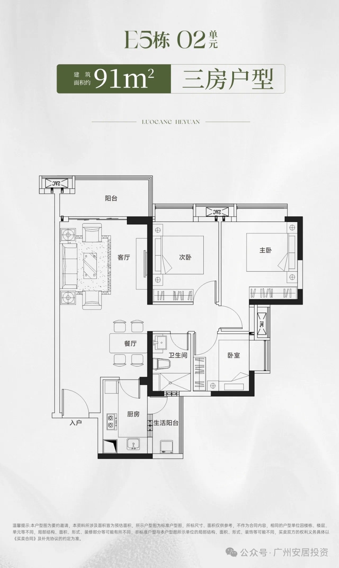
E5栋 02单元
萝岗和苑实用三房户型,以建面约91㎡的B3户型为例,客厅与卧室没有长过道,每一寸空间都合理利用。

1双厅丨客厅与餐厅无缝衔接,形成开阔的公共活动空间,招待亲友也不会感到局促。
2双阳台丨景观阳台,采光甚好,可俯瞰城市盛景;生活阳台,方便日常晾晒与放置洗衣机等。
3卧室丨三卧室皆配备飘窗,增加使用空间,提升居住舒适度,凭窗即可享受惬意时光,都能满足家庭不同阶段的需求。

■嘉翠苑:白云新城三地铁,建面约71-89㎡
项目位于鹤龙街道康卫路东南侧,直线距离2/3/14三线枢纽站嘉禾望岗约800米;周边有机场高速、空港大道、白云大道、广州绕城、广佛肇高速,以及综合枢纽白云站。项目内有卫生站、邮政所、文化活动站、居民健身场所、社区居委会、物业管理办公用房及3480㎡幼儿园(12班)及托儿所。
房 型 一 览

B1栋 C1户型
嘉翠苑实用两房户型,以建面约71㎡的C1户型为例,动静分区,双厅双卧布局十分方正,无长过道,减少空间浪费,让每一寸面积都得到有效利用。
1双厅丨餐客厅一体化,开敞实用,客厅连接景观阳台,保证室内拥有充足采光。
2卧室丨主卧空间宽敞,预留足够大的衣柜位置,满足日常衣物收纳需求;次卧灵动,可根据需求打造成儿童房+书房。
3厨房丨U型厨房,操作台面充足,洗、切、炒动线流畅。
B1栋 A4户型
嘉翠苑实用三房户型,以建面约89㎡的A4户型为例,动静分区,休息区与活动区分隔开,保证居住的静谧性。
1双厅丨餐客厅一体化连通景观阳台,拓宽视觉空间,也让采光与通风效果更佳,闲暇时在阳台品茶赏景十分惬意。
2卧室丨三个卧室分布合理,主次卧空间舒适,均带飘窗,增加室内采光和使用空间,满足不同阶段家庭结构变化的需求。
3厨房丨U型厨房,洗、切、炒动线流畅。
销售中心咨询电话
萝岗和苑
020-31700654
020-31709274
020-86688566
020-31700294
嘉翠苑
020-83621021
020-83621023
020-83621024
020-83621025
020-83621026
咨询时间为周一至周日9:00-18:00
文/广州日报新花城记者:李天研
图片来自广州安居投资公司
广州日报新花城编辑:李慧婷