5月2日深夜
河南开封的一场大火
让无数人为之恸哭
5月2日23时许,地处河南开封的河南大学明伦校区大礼堂发生火灾,造成这一全国重点文物保护单位的部分屋顶坍塌损毁。
5月5日,国务院安委会决定对该起火灾事故查处实行挂牌督办,并派出督办组赴当地督促指导河南省调查组工作,要求科学严谨尽快查明事故原因,依法依规严肃追责问责。

大礼堂见证了河南近代高等教育的发展,
承载着无数师生回忆与学术荣耀。

中西合璧的大礼堂,是河南大学明伦校区的主建筑。图源:河南大学官方网站
笼罩在中国古建上的噩梦
同样是在开封,1000 多年前也发生了一起震惊朝野的特大火灾。
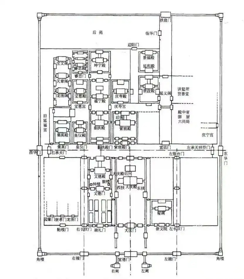
公元 1015 年农历四月二十三日深夜,北宋都城东京(今开封)刮起了东风,一阵火从荣王的家里蹿起,次日五更,已烧至东宫的雍王、相王、南阳郡王等六宫府第;天明后,火又烧至宫城承天门,并延烧内藏库;午时,烧到朝元门东角楼,西至朝堂;未时,火出宫城,连烧中书省、门下省;到了晚上,已烧毁屋舍 2000 余间,因救火而死者逾千人。

北宋皇宫布局图。来源:中华遗产
这场大火烧了整整一天两夜,烧得宫人相压,死伤不计其数。
有人曾说,中国古代建筑就像一首由木头写就的诗歌,传唱着中国人对自然的热爱,也构建了一片绝美的建筑“森林”。只是,这“森林”有一个致命的弱点:怕火。
据统计,仅两宋300多年内,全国发生的大型火灾就多达200多起,不在统计之列的尚不知其数。
为何木质建筑如此怕火?
金木水火土相生相克,但你可知为何木质建筑如此怕火?
现在通常用“火灾荷载”来确定火灾危险等级。

我国古建筑多采用松、柏、杉、楠等材料,据测算其火灾荷载平均高达1立方木材/㎡,是钢筋混凝土建筑的30倍!
而建筑越高大负荷量越大,像著名的应县木塔,这一比例竟为一般要求的60多倍。
古建筑内部起火引起的火灾,通常是室内物件先起火,火势沿着屏扇、帐幔、窗棂等向上延烧,然后再向水平方向发展,沿门窗蹿出后,直烧到屋檐下的斗拱。


大礼堂的木质斗拱飞檐。来源:河南大学新闻网
斗拱由许多小的木材构件叠合而成,是古建筑中具有最大表面积的可燃材料,又高悬空中,遇火即着。由于斗拱主要集中在外檐下面,当火焰沿门窗延烧到外面时,火舌上卷,檐下的斗拱就会迅速被吞噬。
大礼堂在建筑过程中受广州中山纪念堂的启发,选用了27米豪式进口钢屋架,由8柱1梁支撑全部顶层重量,并用水泥加固地基。无论是结构设计还是施工技术,在当时国内条件下都具有突破性。
事故发生的一个半月前,历史学者姜鸣因研究建筑史需要,曾参观正在修缮施工中的大礼堂,他评价河南大学大礼堂为“新中国成立前仅次于广州中山纪念堂的大型礼堂”。
河南大学土木建筑学院张义忠教授曾自豪地介绍:“大礼堂是中国建筑从传统木质结构向现代钢筋水泥结构的一个过渡,展现的是中式传统的审美风格。”
木构屋顶结构精巧,是中西合璧建筑的精华所在,年深日久却成为了火灾中的薄弱环节。粗大的木材很难烧透,其实有着很好的耐火能力,钢架结构相比传统的木质梁柱更坚固,耐火支撑强度反而减弱。
这就是为何大礼堂曾经历5次5级以上地震依然完好无损,却毁于大火。

古人的救火智慧,你了解吗?
在木与火的博弈中,木往往只有招架之功,主要靠水。
在明清故宫,紫禁城外有护城河,城内又有金水河,二者成了皇宫灭火的主要水源。此外,故宫内还打有约80口水井,设有308口消防水缸。
紫禁城内的消防水缸又称“太平缸”。每口直径约1米6,高1米2,能装2吨水,比一辆普通解放牌卡车改装的水罐消防车的储水量还多。但成本不菲,光铸造一口铜缸就需耗银500两。冬天为了防冻,还需安排专人加炭。如果缸里的水不小心结冰,相关责任人便要被杀头。

故宫太和殿是世界上建筑面积最大的古代木构建筑,4口镶金大铜缸至今仍矗立在殿门外。来源:中华遗产
光有储水器具,没有浇水的工具还不行。与太平缸配套的,是数十台“消防唧筒”(一种可以伸缩的套筒)。其在宋代已广泛使用,最初为竹制,后改用铜制。
这种唧筒下端有长柄,顶端开孔,筒内裹在水杆上的棉絮起着活塞的作用,人以手来回拉动,便可压缩出水,可说是一种较初级的半自动“水泵”。

可伸缩的“唧筒”。来源:中华遗产
古人没有电话报警,只好仰仗肉眼观测和迅速的情报传送体系。类似现代交警岗亭,“消防队员”平日里就在一种单体建筑里值班,名“望火楼”。一旦发现火情,白天可击鼓并挥舞旗帜发出信号,夜间便举灯为号。这种望火楼堪称我国首创,一直延续到民国。
古人设计的消防设施固然精巧,但他们想象不到电气时代的模样,也不曾想到“电”能毁掉整座建筑。

宋朝时期的“望火楼”(红色箭头指向处)。来源:中华遗产
两年前曾有学生发出警告
2022年,河南大学一篇硕士学位论文《教育建筑遗产的消防与可持续保护利用研究——以河南大学近代建筑群为例》曾为大礼堂的火灾敲响了警钟。
这篇论文指出,河南大学教育建筑遗产群火灾荷载大、火灾隐患多、疏散条件不足、自救能力弱、消防设施不完善,尤其是大礼堂作为观演场地,自身存在的火灾危险性较高。潜在的火灾因素包括:电气火灾,如原有电气线路老化,电气设备增多,用电荷载过大;用火不慎,使用人员室内吸烟、违规使用大功率,管理人员做饭、取暖、照明等生活用火引发,维修施工时操作不当或使用的明火工具不慎引燃室内可燃物;雷击,不可抗力因素引发。
河南大学表示,火灾发生时,礼堂内没有施工人员,初步推测起火原因可能与修缮过程中的电路老化有关。
两年前的“预言”,竟然不幸成真。

论文封面截图。
灾难或许本可以避免
近些年世界范围内
发生不少古建筑火灾
原因不少与“电”有关
2019年4月15日,巴黎圣母院发生失火事件,举世震惊。
大火持续超过四小时,导致巴黎圣母院木制框架基本被烧毁,塔尖坍塌。后经调查,起火原因大概率为施工期间电器线路短路。

巴黎圣母院尖顶修复,正在进行脚手架拆除。来源:法新社
2018年9月2日,巴西国家博物馆发生大火,92.5%文物被毁,起火原因系一楼礼堂的空调漏电短路。
巴西人类学家梅里奥奥•戈麦斯说,“我们巴西人只有500年的历史,国家博物馆已有200年历史。这就是我们所拥有的,以及永远失去的东西。”

巴西国家博物馆火灾遗址。来源:新华社
2015年1月3日凌晨,云南大理巍山的明代古城拱辰楼,因电气线路故障发生火灾。火灾前,这一600多年历史的省保单位居然是茶馆的经营场所。

国家文物局原副局长宋新潮2019年接受采访时曾表示,火灾事故中电气老化问题日益凸显,由此引发的事故率呈逐年上升的趋势,占比更是达到了50%。
古建筑中使用的木材经过时间推移含水量逐渐降低,变得越来越干燥,简直就是天然引燃物。而很多古建筑中电器的布置多是在建筑的木质构件上直接敷设灯具和线路,一旦维护不到位发生线路老化,发生火灾几乎是必然。

一张大礼堂修缮期间的照片上,大门上高悬着一条横幅:
文化遗产不可再生,加强保护刻不容缓
每一次火灾,都意味着有一部分人类遗产永远化为灰烬。
希望古建筑保护不必再以这样悲剧的形式得到关注。

资料来源:
澎湃新闻、中华遗产杂志、新华社、中新视频、央视新闻、央广网、北京日报相关报道
广州日报媒重点实验室出品
统筹/徐梅花
文/张乐怡
广州日报新花城编辑:张乐怡、马俊贤